this is an h1

this is an h2

Institucional | SERVIÇO
Saiba mais sobre a estrutura da sede do Sebrae e detalhes da planta

Todo o prédio foi desenhado para receber bem os colaboradores e o público externo.

· Atualizado em 06/12/2016
Imagem de destaque
FAVORITAR
Botão favoritar
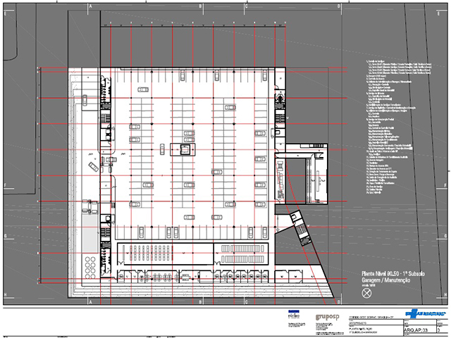
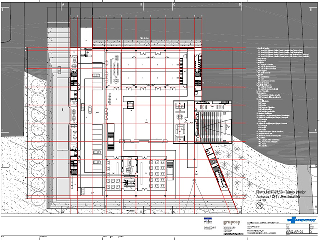
Plantas Arquitetônicas

Nos térreos superior e inferior do edifício encontram-se as funções coletivas, atividades que recebem, por vezes, colaboradores ou público externo. As funções administrativas e o corpo diretivo concentram-se nos pavimentos superiores.

Confira a galeria de imagens 

 

FAVORITAR
Botão favoritar
Maquetes

Os espaços estão organizados e articulados pela Praça de Estar ou Praça Central, o coração do projeto.

Confira a galeria de imagens 


O conteúdo foi útil pra você? Sim Não
Obrigado!

Foi um prazer te ajudar :)

Precisa de ajuda?

Nós temos especialistas prontos para atender você e o seu negócio de forma online e gratuita.

Acesse agora

Posso ajudar?