this is an h1

this is an h2

Institucional | SERVIÇO
Confira os desenhos e os primeiros esboços da sede do Sebrae

Além de inovações na estrutura, todo o projeto foi pensado para se integrar à renomada arquitetura de Brasília.

· Atualizado em 06/12/2016
Imagem de destaque
FAVORITAR
Botão favoritar
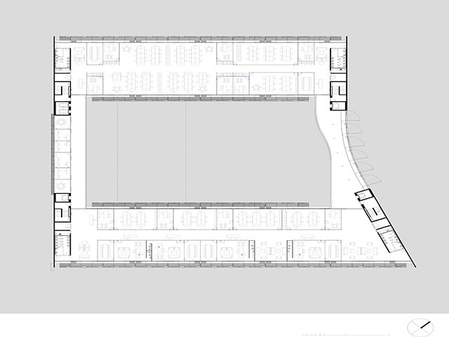
Croquis

Nos esboços ou croquis do que viria a se tornar a sede do Sebrae, já se via um prédio moderno, funcional e integrado à planta de Brasília. 

Veja a galeria de imagens

FAVORITAR
Botão favoritar
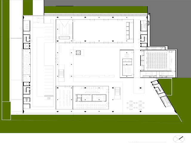
Desenhos do projeto

Internamente, o projeto previu, por exemplo, áreas disponíveis para os escritórios realmente livres, com vãos de até 70 metros de comprimento.

Veja a galeria de imagens

FAVORITAR
Botão favoritar

               


O conteúdo foi útil pra você? Sim Não
Obrigado!

Foi um prazer te ajudar :)

FAVORITAR
Botão favoritar
Precisa de ajuda?

Nós temos especialistas prontos para atender você e o seu negócio de forma online e gratuita.

Acesse agora